600 22 62 93   |  
Ref
Busco
Tipo
En
Zona
Habitaciones
Baños
Características
Precio

OPORTUNIDAD ÚNICA REFORMADA EN NÚÑEZ DE BALBOA (ref.2391)

Piso en venta en Madrid (Salamanca)

3.200.000 €
ref. 2391
1932 Año de construcción
117 m2 construidos
 
 Dormitorios 3
 Baños 3
 Amueblado
 Cocina Amueblada

Ascensor
Aire acondicionado
Calificación Energética En trámite
Luz
Gas
Agua
Conserje

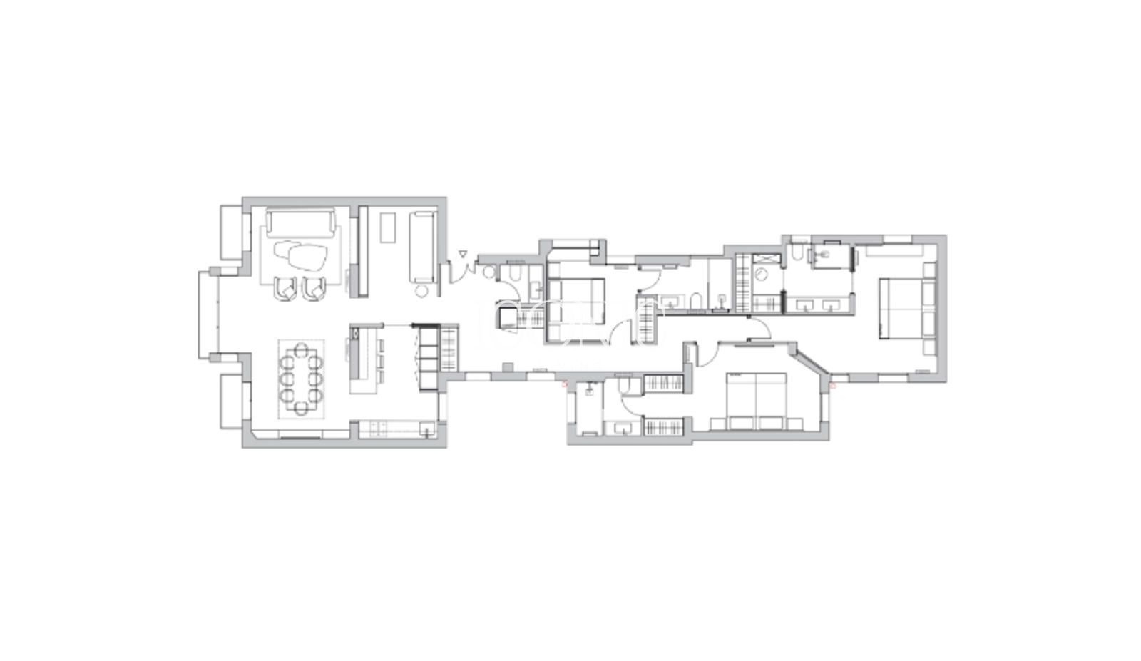
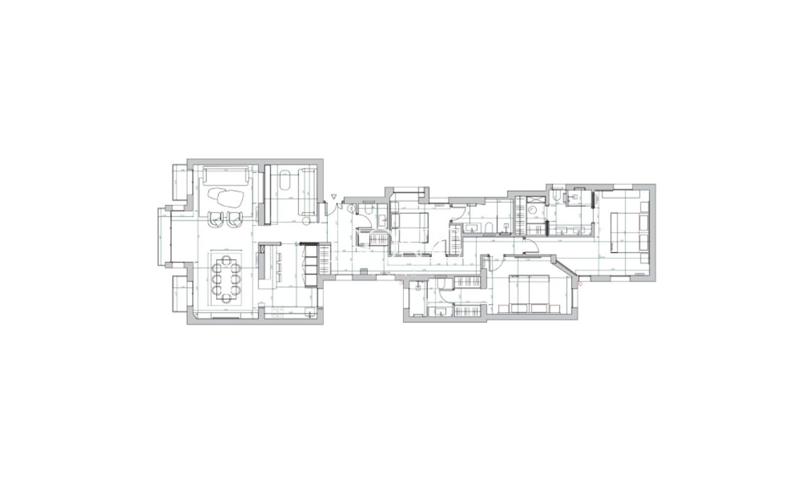
Exclusiva vivienda reformada de lujo ubicada en Recoletos, a escasos metros de Jorge Juan, en la prestigiosa calle Núñez de Balboa. Situada en una tercera planta exterior, la propiedad disfruta de una excelente luminosidad gracias a su orientación oeste y a sus tres balcones, ofreciendo una conexión directa con una de las zonas más cotizadas y representativas de Madrid.

Con una superficie de 167 m², la vivienda cuenta con 3 dormitorios y 3 baños, techos de 3 metros de altura y una reforma integral con acabados de primera calidad, donde cada detalle ha sido cuidadosamente seleccionado para lograr un equilibrio entre elegancia, confort y funcionalidad. El resultado es un espacio sofisticado, atemporal y listo para entrar a vivir.

La finca es clásica y representativa, con ascensor y portero físico, y presenta unos gastos muy contenidos (IBI 1.100 €/año y comunidad 150 €/mes). Se trata de una propiedad ideal tanto para cliente final exigente como para inversión patrimonial, en una zona con alta demanda y sólida revalorización histórica.

Contacte con su asesor
Vittoria Federica De Andreis (Venta)

Si desea más información sobre esta propiedad, por favor, rellene el cuestionario:



  Claudio Coello 3828001 – Madrid
  iconic@iconicliving.es
  +34 600 22 62 93 -